Area : 625sqm
Location : Da Tuong, Vinh Nguyen, Nha Trang, Viet Nam
Year of completion : 2023
Photo : ©324Praxis Architects
Located in the vibrant city of Nha Trang, where the atmosphere intertwines a bustling tourist hub with the essence of local life, our building stands as a testament to the symbiosis of these influences.
Grounded in the concept of embracing a simple, unpretentious lifestyle, our design philosophy centers around crafting a hotel that embodies this notion entirely. In response to the desire for a space where visitors can immerse themselves in serenity and gain insight into the diverse local culture, we've created a place that encourages engagement, observation, empathy, and a deep appreciation for native ways of life. Here, doors are opened not only by demand but by the gradual realization that humans must learn to adapt, respond, and find joy in this way of life.
We sought to create an inviting, flexible façade that adapts to various uses. By extending the façade outwards into the city, the hotel seamlessly integrates a café and a tranquil bar accessible from the street, welcoming locals and tourists alike to partake in its offerings.
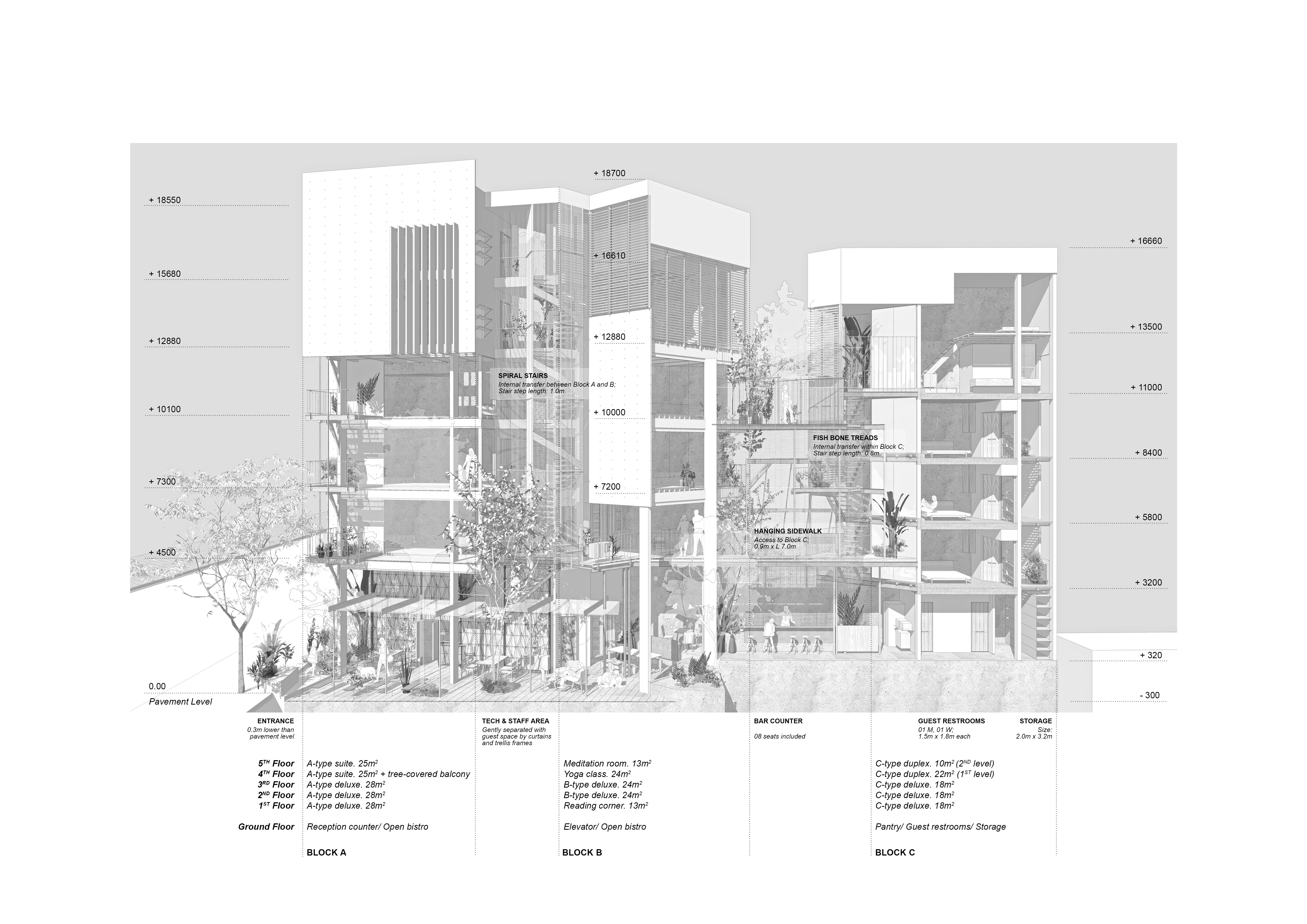
To harmonize with the surrounding landscape, the hotel encompasses a variety of spaces with vistas of mountains or sea. These spaces are divided into three volumes—five floors, three floors, and four floors—following the condition of the land. These sections interact and connect through open spaces, granting views of the garden below and the sky above.
This open space incorporates three alternating functions distributed vertically throughout the structure. The ground floor houses a café seating area and a cozy 6-seat bar, flowing upwards to a mezzanine space dedicated to reading and relaxation, allowing guests to savor the open air and connect with the elevated surroundings.
On the third floor, a communal rooftop garden presents an ideal platform for stargazing or sunrise watching. Nestled within a valley formed by building blocks and shaded by higher structures, it evokes a sense of protection and intimacy. On the fourth level, a yoga and meditation space offers panoramic views of the entire complex.
The arrangement of these spaces—a continuous exterior and discrete enveloping volumes—fosters an environment where people can tangibly feel and perceive the invisible. These enveloping walls provide an avenue for us to experience the transformation of emptiness into enclosed spaces that are serene and contemplative, evoking feelings of refuge and intimacy and once again rekindling our connection with nature.
Our vision of an outdoor sensibility serves as the cornerstone of this hotel, as we've embraced materials that facilitate openness, much like the parklands and adjacent pathways that seamlessly blend with interior spaces. After a thorough exploration of local materials that could be employed, given aesthetic and diversity constraints, we chose to work with washed concrete with striped patterns—a material widely utilized in parks, noted for its anti-slip qualities and color versatility achieved through adjusting aggregate ratios.
The project has cultivated a sense of "biophilia," teaching us to "sense and cherish" these empty spaces and expressions of beauty, inspiration, enchantment, tranquility, stillness, and intimacy.













































